XtendLan 19" univerzální rozvaděč s montážní deskou, krytí IP66, šířka 300mm, hloubka 210mm, výška 400mm, šedý
Popis a parametre
XtendLan 19" univerzální rozvaděč s montážní deskou, krytí IP66, šířka 300mm, hloubka 210mm, výška 400mm, šedý
XtendLan univerzálny rozvádzač s montážnou doskou, 300x210x400 - krytie IP66
šírka 300mm, hĺbka 210mm, výška 400, sivý
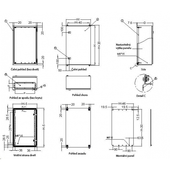
Univerzálny rozvádzač, IP66, oceľový, sivý. Trojvrstvová povrchová úprava (fosfátovanie, máčanie v základnom laku, práškový lak), vymeniteľné dvere, pevná konštrukcia. Odnímateľný kryt káblového prechodu. Rozvádzač je vyrobený z válcovanej ocele o hrúbke 1,5 mm. Štandardy: IEC60529, EN60529/10.91, GB4208-93 Vyhotovenie: dvere - plné, otvárateľné o 110 stupňov, montáž pravá alebo ľavá (užívateľsky vymeniteľné otváranie) zadný kryt - plný bočný kryt - plný horný kryt - plný montážna doska:
- hrúbka montážneho panelu 2,5mm, valcovaná oceľ
- šírka menšia o 46mm než vonkajšia šírka skriňa
- výška menšia o 30mm než vonkajšia výška skriňa
- farba oranžová (RAL 2000)
- zemniaci skrut s krytkou (M8x15)
- odsadenie dosky od zadného steny štandardne 21mm, nastaviteľné do dĺžky upevňovacích skrutiek
- montážne skrutky
- univerzálny kľúč
| Technické špecifikácie: | |
| Výška: | 400 mm |
| Šírka: | 300 mm |
| Hĺbka: | 210 mm |
| Materiál: | valcovaná oceľ trojvrstvová povrchová úprava |
| Hrúbka: | 1,5 mm |
| Povrchová úprava: | sivá, RAL7032 |
Popis produktu bol preložený pomocou umelej inteligencie a môže obsahovať nepresnosti.
.XtendLan 19" univerzální rozvaděč s montážní deskou, krytí IP66, šířka 300mm, hloubka 210mm, výška 400mm, šedý
Naposledy navštívené














