19" jednodielny rack TRITON 12U/500 mm, odnímateľné bočné kryty
19" jednodielny rack TRITON 12U/500 mm, odnímateľné bočné kryty
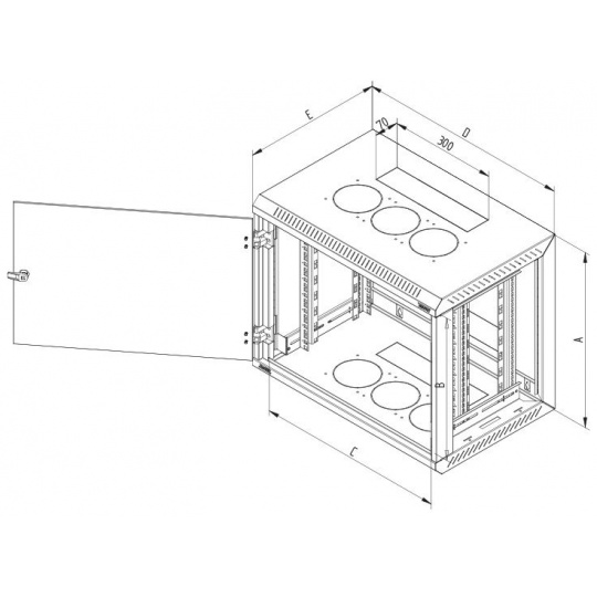
Nástenný rozvádzač RUA
Jednodielny zváraný rozvádzač s odnímateľnými bočnými panelmi. IP30, nosnosť 30 kg.
| Príbaly: | |
| Kľúč - predné dvere | 2x |
| Skrutka 6x50 | 4x |
| Podložka 6,6 | 4x |
| Hmoždinka 10 | 4x |
| Plávajúca matica M6 | 8x |
| Prachový uzáver | 1x |
| Skrutka M6x10 | 8x |
| Plastová podložka | 8x |
| Plastový rám 300x70 | 1x |
Materiál: bezpečnostné tvrdené sklo hrúbka. 4 mm, oceľový plech
| Špecifikácie: | |
| Výška (mm) | 635 |
| Šírka (mm) | 600 |
| Hĺbka (mm) | 495 |
| Hmotnosť (netto v kg) | 21,7 |
| Max. odporúčané zaťaženie (kg) | 30 |
Vysokopevnostná konštrukcia
Rozvádzač má robustnú zváranú konštrukciu. Vysokokvalitné spracovanie a najnovšie technológie zaručujú skvelý vzhľad a nosnosť 30 kg.
Flexibilné otváranie dverí
Vlastný systém závesov umožňuje otváranie dverí v uhle takmer 180°. Dvere sa dajú ľahko demontovať.
Zámok dverí
Umožňuje jednoduchý a rýchly prístup k rozvádzaču.
Nastaviteľné vertikálne koľajnice
Dva páry 19" vertikálnych koľajníc sú plynule nastaviteľné v ľubovoľnej hĺbke stojana. To uľahčuje inštaláciu zariadenia a usporiadanie pripojovacích káblov.
Odlamovacie zátky
Horná, spodná a zadná časť skrine sú vybavené káblovými vstupmi zakrytými odlamovacími zátkami. Súčasťou balenia je plastový rám a tesniaca krytka kefy na utesnenie vstupného otvoru proti prachu.
Dvere
Dvere rozvádzača sú štandardne celosklenené, ale na požiadanie môžu byť aj celoplošné alebo perforované.
Odnímateľné bočné panely
Odnímateľné bočné panely umožňujú jednoduchý prístup k nainštalovanému zariadeniu z boku. Zámky sú štandardne pripevnené ku skeletu s rovnakým kľúčom ako zámok predných dverí.
Ventilácia
RUA má šesť výrezov na montáž chladiacich jednotiek RAx-CH-X2x-X1 alebo ventilátorov RAX-CH-X07-X9 (až tri v hornej a tri v dolnej časti skrine). Rozvádzač RUA teraz umožňuje inštaláciu zariadení, ktoré predtým nemohli byť uložené v nástenných rozvádzačoch a museli sa inštalovať v rozvádzačoch v stojanoch...















